
Prijavite se za
email obaveštenja Mailing lista
-
kliknite ovde -

Gravitacione mašine
- od Leonarda da Vinčija do najnovijih otkrića
Knjiga koja može menjati svet
|
Naziv projekta: "Samogrejna eko kuća - Za naš ekološki svet budućnosti" |
Tema: Samogrejna ekološka kuća - Solarna zemunica |
Predmet projekta: Izgradnja javnog i pokaznog samogrejnog objekta |
Oblasti: energetika, ekologija, građevinarstvo |
Discipline: ekološka arhitektura, zdravo stanovanje, energetska efikasnost u zgradarstvu, obnovljivi izvori energije
|
Ciljevi: podizanja ekološke svesti, razvijanja energetski odgovornog ponašanja, promocija upotrebe obnovljivih i čistih izvora energije |
Nosilac projekta: "Istraživačko - razvojni centar Veljko Milković" (VEMIRC) Novi Sad |
Mesto realizacije: Grad Novi Sad |
Vremenski rok: 2012-2013. godina |
Procenjena vrednost projekta: 2.500.000 din. (25.000 evra) |

Posetite naš novi sajt
Naziv projekta |
"Samogrejna eko kuća - Za naš ekološki svet budućnosti"
|
Tema projekta
|
|
|
|
Vizija |
Ekološka naselja i privredni objekti maksimalne ugodnosti uz maksimalno iskorišćenje alternativnih izvora energije i maksimalne energetske efikasnosti uz zdrav i bezbedan život u skladu sa prirodom.
|
Misija |
Podizanje svesti o značaju i pogodnostima korišćenja alternativnih izvora energije kroz primer i razvoj ekoloških inovacija i življenja u skladu sa prirodom.
|
Ciljevi |
|---|
Praktično upoznavanje javnosti i građana sa jednim od najuspešnijih domaćih primera energetske efikasnosti u zgradarstvu putem izgradnje javnog i pokaznog samogrejnog eko objekta, otvorenog tipa na lako dostupnom i pristupačnom mestu, u cilju podizanja ekološke svesti, razvijanja energetski odgovornog ponašanja i promocije upotrebe obnovljivih i čistih izvora energije. |
Slogan: Za naš ekološki svet budućnosti! |
Opravdanost projekta |
|---|
Svest o potrebi štednje energenata i podizanja energetske efikasnosti domova u kojima živimo je još daleko od prihvatljivog nivoa. Da bi se dostigli svetski standardi u ovoj oblasti i racionalno koristili energenti, potrebno je pre svega više raditi na promociji i edukaciji javnosti o održivim rešenjima u energetici, građevinarstvu i arhitekturi i na taj način povećavati svest kod ljudi o alternativnim izvorima energije i prihvatanju ekoloških i energetski efikasnijih načina gradnje. Koncept samogrejne ekološke kuće kao dokazani visoko energetski efikasan građevinski objekat koji je u potpunosti u skladu sa prirodom i neutralan prema okolini uz maksimalno korišćenje alternativnih izvora energije, svojim primerom upravo nudi održivo rešenje kako na jeftin, ekološki i efikasan način rešavati navedene goruće probleme društva. Kao najbolji domaći primer energetske efikasnosti u zgradarstvu prethodnih godina privukao je pažnju medija, građana i stručne javnosti te je poraslo je interesovanje i želja da se u neposrednom ličnom kontaktu zainteresovani upoznaju sa svim prednostima i karatkeristikama ovakve ekološke gradnje. Zbog nemogućnosti da postojeći izgrađeni privatni stambeni objekti ispune misiju i omoguće svim zainteresovanima da se u svakom trenutku i na pristupačnom mestu lično uvere u prednosti i efikasnost samogrejne eko-kuće, javila se potreba da se ovaj koncept približi građanima na nov i moderan način putem izgradnje pokaznog i promotivnog objekta, otvorenog karaktera na lako dostupnom mestu na kojem će se moći u svakom trenutku videti i osetiti prednosti samogrejne eko-kuće. Zato je upravo potrebna izgradnja pokazne i promotivne samogrejne kuće kao javnog objekta sa atraktivnim sadržajima, na lepoj i lako dostupnoj lokaciji u gradskoj sredini, koji će biti dostupan i otvoren u svakom trenutku i u kome će se građani i stručna javnost moći direktno upoznati i edukovati sa ovakvim načinom gradnje i življenja i kroz pozitivna iskustva boravka u njima uvideti sve prednosti i steći sve neophodne informacije o postignutim rezultatima energetske efikasnosti i primeni solarne energije u arhitekturi. Upravo je predlog da se ovakav objekat izgradi u gradskim zelenim zonama i parkovima jer se svojom arhitekturom idealno uklapa u zaštićena područja prirode pošto travnati sloj oko kuće ne oduzima zelenu površinu, čak je i povećava, i objekat je praktično nevidljiv sa 3 strane. S obzirom da u našem društvu tek predstoji značajno ulaganje u energetsku efikasnost i obnovljive izvore energije, realizacijom ovog projekta bi se upravo postigao cilj i na pravi način se pokazalo kako se treba racionalno i obazrivo ophoditi prema energetskim izvorima i u isto vreme brinuti o životnoj sredini. |
Očekivani rezultati |
|---|
|
Ciljna grupa |
|---|
|
Predmet projekta |
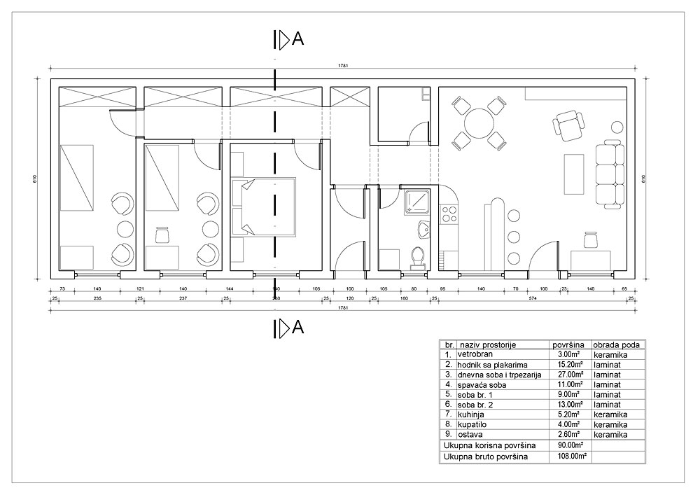
Izgradnja javnog i pokaznog samogrejnog eko objekta, otvorenog tipa na lako dostupnom i pristupačnom mestu.
Veličina objekta:
Neophodna parcela za izgradnju: plac južne orijentacije sa ili bez blagog nagiba
Lokacija za izgradnju: gradski park ili druga javna slobodna površina u gradskoj sredini. Predložena lokacija br. 1: gradski park (Limanski park) u Novom Sadu
Alternativa izgradnji objekta u gradskoj sredini je izgradnja na pogodnom zemljištu u okolini grada (Novog Sada). |
Funkcija i namena objekta |
|---|
Sadržaj i namena objekta mogu biti različiti i multifunkcionalni u isto vreme u dogovoru sa lokalnom samoupravom: centar za promociju i edukaciju o energetskoj efikasnosti i obnovljivim izvorima energije, turističko-informativni centar, muzej, galerija, biletarnica, suvernirnica, ugostiteljski objekat (kafić, klub), predškolska ustanova (zabavište), istraživački centar, inovacioni centar, inkubator, čuvarsko-tehnička kućica za park, sedište službe gradskog zelenila, gradske uprave za zaštitu životne sredine, gradske agencije za energetiku, gradske uprave za stambene poslove i urbanizam (šalter za preuzimanje ili podnošenje dokumenata), pokrajinske agencije za energetsku efikasnost, šalter sala informatike, pošte, banke... |
Mesto realizacije projekta |
Grad Novi Sad * - parcela na lako dostupnom i pristupačnom mestu u gradskoj sredini.
* Izgradnja javne samogrejne kuće moguća je i poželjna i u drugim opštinama i gradovima širom Srbije. |
Vremenski rok |
Planirani početak izgradnje promotivnog samogrejnog objekta je tokom 2012-2013. godine.
|
Aktivnosti realizacije projekta |
Projekat izgradnje samogrejnog eko objekta sprovešće se u 8 faza tokom 2010-2013. godine.
Faze realizacije projekta:
|
Finansijski plan |
Procenjena vrednost projekta za realizaciju izgradnje promotivne samogrejne kuće iznosi 2.500.000 din. (25.000 evra). Cena projekta uključuje isključivo troškove izgradnje građevinskog objekta (projektovanje, materijal i izvođenje radova) veličine 50m2 (varijanta A) po ceni izgradnje oko 450€/m2. Napomena: mogućnost dobijanja donacija materijala, izvođačkih usluga i opreme što može smanjiti cenu realizacije projekta. Parcela za izgradnju ustupljena ili data na korišćenje od strane lokalne samouprave, pravnih ili fizičkih lica. Izvori finansiranja:
|
![]() |
|
![]() |
Svi ljudi dobre volje koji su u mogućnosti da novčanim prilozima, građevinskim materijalom, izvođačkim uslugama, zemljištem za izgradnju ili na drugi način pomognu izgradnju javne promotivne samogrejne eko-kuće dobro došli su da se priključe akciji pomoći izgradnje.
Ako želite da pomognete ostvarenje vizije ovog projekta i da se priključite našem Klubu Donatora. molimo Vas za početak popunite onlajn donatorski list. |
Nosilac projekta |
|
Istraživačko - razvojni centar Veljko Milković - neprofitna organizacija posvećena ekološki održivom razvoju, promociji i razvoju novih proizvoda i tehnologija i njihovoj primeni u svakodnevnom životu. |
|
Organizaciona struktura |
Realizaciju projekta sprovodi organizacioni tim na čelu sa stručnim savetom. |
Stručni savet:
|
Reference |
||
Međunarodna nagrada za održivost "Energy Globe Award 2009" Nacionalni pobednik za Republiku Srbiju |
Samogrejna ekološka kuća jedna od 9 najboljih tehnoloških inovacija u Republici Srbiji za 2009. |
Novembarska povelja Grada Novog Sada 2002. za izuzetan doprinos i inovacije u oblasti ekologije i energetike |
više od 30 godina iskustva u razvoju samogrejnih ekoloških kuća - solarnih zemunica |
|
|
10-ak izvedenih objekata po konceptu samogrejne kuće sa zemljanom zaštitom i/ili primenom reflektujućih površina - realizovni i poljoprivredni objekti: plastenici sa reflektujućim površinama |
|
stambeni objekat sa primenom solarne tehnologije reflektujućih površina u izgradnji u Sremskoj Kamenici |
|
|
ostvaren visok stepen energetske efikasnosti u praksi; ustede u grejanju do 85%, hlađenju 100%, osvetljenju oko 30%, ustede u građevinskom materijalu od 10-20% u odnosu na klasičan stil gradnje |
|
međunarodne i domaće nagrade i priznanja |
|
patentom zaštićeno tehničko-tehnološko rešenje - prva patentna prijava 1977. poslednja 2007. |
|
dve objavljene knjige "Solarne zemunice - dom budućnosti" 1983. i "Ekološke kuće" 1991. |
|
objavljeno više naučnih i stručnih radova na temu samogrejne eko-kuće;
učešće na međunarodnim konferencijama u Italiji 1995, 2010. i Japanu 1996. |
|
|
koncept se izučava u okviru predmeta "Ekologija i građena sredina" na Fakultetu tehničkih nauka Univerziteta u Novom Sadu i u okviru predmeta "Unutrašnje instalacije" na Visokoj građevinsko-geodetskoj školi u Beogradu |
|
samogrejne kuće inspiracija i tema za brojne naučne, školske i studentske radove (seminarske, diplomske i magistarske radove) kao i za doktorske disertacije |
Mediji o nama |
Inovacija Veljka Milkovića iz Novog Sada, koju je nagradila međunarodna fondacija "Enerdži glob", omogućava uštede u grejanju do 85 odsto, hlađenju 100 odsto, osvetljenju oko 30 odsto i građevinskom materijalu od 18 do 40 odsto |
Samogrejna ekološka kuća - Radio Novi Sad |
|
Solarna kuća koja štedi energiju! Dok početak grejne sezone za većinu domaćinstava znači udar na budžet sa kojim ne znaju kako da izađu na kraj, inženjer Aleksandar Nikolić spokojno dočekuje hladnije dane. |
U Novom Sadu više od decenije postoje solarne zemunice - samogrejne ekološke kuće sa zemljanom zaštitom i reflektujućim površinama koje su u praksi potvrđene i koje ostvaruju uštede u grejanju do 85 procenata. |
Patent Novosađanina akademika Veljka Milkovića tek priznat, mada je u primeni već 33 godine. Pet puta jeftinija od obične kuće. |
Samogrejna ekološka kuća obezbeđuje uštedu u grejanju do 85 odsto, u osvetljenju oko 30 posto, a utrošak građevinskog materijala je manji za 18-40 procenata |
U gradu postoje samogrejne ekološke kuće sa zemljanom zaštitom umesto krova, koja zimi štiti od niskih, a leti od visokih temperatura... |
Inovativni projekat "Samogrejna ekološka kuća" autora Veljka Milkovića, istraživača i pronalazača iz Novog Sada, dobio je nagradu za nacionalnog pobednika za Srbiju, koju mu je dodelila međunarodna fondacija "Energy Globe". |
Inženjer Veljko Milković prvi u Srbiji projektovao samogrejne ekološke stambene objekte |
Koncept samogrejnih ekoloških kuca sa reflektujućim površinama je ideja koja je začeta krajem sedamdesetih, kada je 1978. godine napravljena poveća maketa kuće, dok je prvi model od drveta izgrađen 1979. na kome su vršena testiranja i ispitivanja. |
Podrška projektu |
||
Realizacija projekta se sprovodi uz svesrdnu podršku društva i državnih organa, institucija, ustanova i strukovnih organizacija. |
||
Projekat zvanično pismeno podržali: |
||
|
||
Kontakt Istraživačko-razvojni centar Veljko Milković Bulevar cara Lazara 56 21000 Novi Sad Srbija PAK 403652 tel: 021/6366-487 e-mail: office@veljkomilkovic.com web: www.veljkomilkovic.com |